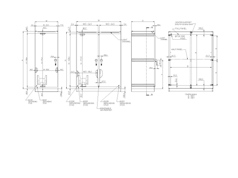
Technische Daten ES-Schrank mit Zugang von einer Seite